Freistehendes Einfamilienhaus + unbebautes Nachbargrundstück in Schönecken - ruhige Lage
Objektart
Adresse
Objektdaten
Informationen
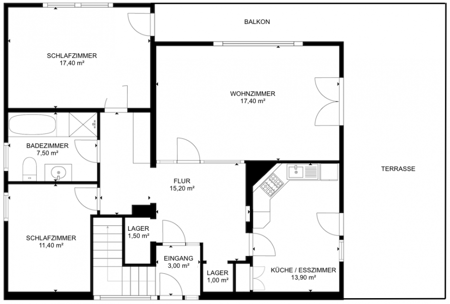
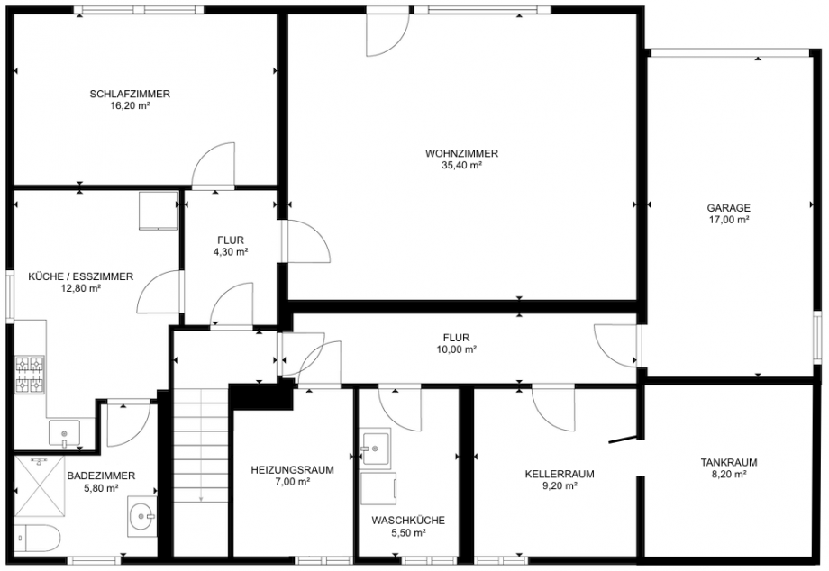
Ausstattung
Details
Um alle Bilder zu dieser Immobilie sehen zu können, fordern Sie bitte unser umfangreiches Exposé an. Senden Sie uns Ihre Anfrage und Sie erhalten umgehend das Exposé mit vollständigem Bildmaterial und detaillierte Beschreibung. BITTE SENDEN SIE IHRE ANFRAGE MIT VOLLSTÄNDIGEN KONTAKTDATEN!
Kunststofffenster mit Zweifachverglasung (1999) | Bodenbelag: Laminat, Marmor, Steinfliesen, Fliesen, PVC | Deckenverkleidung: Holz, Putz | Wandverkleidung: Putz, Tapete, Fliesen | Öl-Zentralheizung (2000) | Garten & Terrasse | Garage | Einbauküche inkl. Elektrogeräte
Die Ortsgemeinde Schönecken, die sich aus Schönecken und dem Ortsteil Wetteldorf zusammensetzt, liegt als ausgewiesenes Grundzentrum in der Westeifel im Eifelkreis Bitburg-Prüm. Eingebettet in die Prümer Kalkmulde, grenzt die Gemeinde an das Naturschutzgebiet Schönecker Schweiz, was ihr einen besonders hohen Freizeit- und Erholungswert verleiht. Die Nahversorgung ist in Schönecken gesichert: Ein großer EDEKA-Supermarkt mit Backshop und Frischetheken sowie weitere Gastronomie und lokale Geschäfte sind im Ort vorhanden. Familien profitieren von der Infrastruktur vor Ort, denn die Gemeinde verfügt sowohl über einen Kindergarten als auch die Graf-Hartard-Grundschule. Für weiterführende Schulen wie die Realschule plus oder das Gymnasium ist die nahe gelegene Stadt Prüm zuständig. Prüm selbst mit ihrer umfassenden Infrastruktur, erweiterten Einkaufsmöglichkeiten und einem Krankenhaus ist lediglich etwa 8 bis 10 Kilometer entfernt und somit schnell erreichbar. Schönecken kombiniert somit historischen Wohncharme und Naturnähe mit einer guten Grundversorgung und einer direkten Anbindung an das Zentrum Prüm.
Sie wollen Ihre Immobilie verkaufen? Dann sprechen Sie uns an und wir vermitteln Ihre Immobilie in 5* Qualität.
Links
Energieausweis (Bedarfsausweis)
254,70 kWh / (m²*a) Endenergiebedarf
254,70 kWh / (m²*a) Endenergiebedarf
254,70 kWh / (m²*a) Endenergiebedarf
Weitere Informationen
| Wesentlicher Energieträger | Öl |
| Energieausweis Ausstelldatum | 2025-12-03 |
| Energieausweis gültig bis | 02.12.2035 |
| Energieausweis Jahrgang | ab dem 1.5.2014 |
| Energieausweis Werteklasse | H |
| Energieausweis Baujahr | 1973 |
| Energieausweis Gebäudeart | Wohngebäude |
| Heizung | Zentralheizung |
| Befeuerung | Öl |
Ich bin damit einverstanden, dass mir Karten von Google angezeigt werden. Es gelten die Datenschutzbedingungen von Google (https://policies.google.com/privacy).
Ich bin einverstanden